Visicon to prosta i wygodna aplikacja, za pomocą której tworzone są projekty projektowe lokali. Program przeznaczony jest dla osób i firm, które potrzebują opracować rozwiązanie szkicowe do przebudowy mieszkania, aranżacji powierzchni handlowej, zaprojektowania kuchni, łazienki czy przestrzeni biurowej.

Tworząc i wypełniając układ w dwuwymiarowym oknie i oglądając go w dużych ilościach, projekt pomieszczenia może zostać wykonany przez użytkownika, który nie ma dużych umiejętności technicznych. Szybkość instalacji i dostępność rosyjskojęzycznej wersji znacznie upraszczają proces pracy. Zrozumienie algorytmu pracy i masteringu interfejsu zajmie nie więcej niż 20 minut, ponieważ interfejs programu jest minimalistyczny i logicznie zbudowany.

Przyjrzyjmy się bliżej funkcjom aplikacji Visicon.

Zobacz także: Programy do projektowania domów

Tworzenie planu pokoju

Przed rozpoczęciem projektu zostaniesz poproszony o "zbudowanie" pokoju od podstaw lub skorzystanie z kilku wstępnie skonfigurowanych szablonów. Szablony to puste pomieszczenia z oknami i drzwiami, w których ustawione są proporcje i wysokość sufitu. Obecność szablonów jest bardzo przydatna dla tych, którzy po raz pierwszy otworzyli program lub pracują w standardowych pokojach.

Plan piętra w Visicon

Pusty arkusz pokazuje ściany, podłogę i sufit są tworzone automatycznie. Przed rysowaniem ściany program sugeruje ustawienie jej grubości i współrzędnych. Istnieje funkcja wymiarowania.

Rysunek ścian w Visicon

Prostota algorytmu pracy w Visicon polega na tym, że po narysowaniu ścian użytkownik może wypełnić tylko pomieszczenia elementami bibliotecznymi: oknami, drzwiami, meblami, sprzętem, sprzętem i innymi. Wystarczy znaleźć żądany element na liście i przeciągnąć go do planu. Taka organizacja sprawia, że ​​prędkość pracy jest naprawdę wysoka.

Dodawanie mebli do planu w Visicon

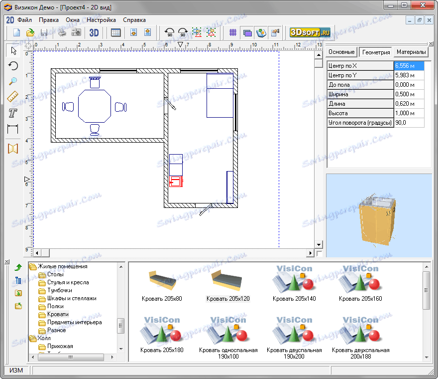
Po dodaniu elementów do planu są gotowe do edycji.

Edytowanie elementów

Obiekty w pokoju można przesuwać i obracać. Parametry obiektu ustawiane są w panelu edycji po prawej stronie pola roboczego. Urządzenie panelu edycji jest tak proste, jak to tylko możliwe: na pierwszej karcie ustawiana jest nazwa obiektu, z drugiej - jego geometryczna charakterystyka, na trzeciej - materiały i tekstury powierzchni obiektu. Osobną wygodę stanowi obracające się mini-okno podglądu elementu. Wszystkie zmiany dokonane w obiekcie będą na nim wyświetlane.

Edytuj panel w Visicon

Jeśli w scenie nie zostaną wybrane żadne obiekty, cały pokój zostanie wyświetlony w oknie podglądu.

Dodawanie tekstur i materiałów

Visicon pozwala na zastosowanie dużej liczby tekstur do obiektów. Biblioteka tekstur zawiera obrazy rastrowe drewna, skóry, tapety, podłóg i wielu innych rodzajów dekoracji wnętrz.

Dodawanie tekstur i materiałów

Visicon pozwala na zastosowanie dużej liczby tekstur do obiektów. Biblioteka tekstur zawiera obrazy rastrowe drewna, skóry, tapety, podłóg i wielu innych rodzajów dekoracji wnętrz.

Edytuj panel w Visicon

Wyświetlanie modelu 3D

W oknie modelu 3D wyświetlany jest pokój z teksturami, ułożonymi elementami mebli i eksponowanym oświetleniem. W oknie trójwymiarowym nie ma możliwości wyboru i edycji elementów, co nie jest wygodne, jednak elastyczna edycja w 2D kompensuje tę wadę. Poruszanie się po modelu jest najwygodniejsze w trybie "chodzenia", kontrolując ruch kamery za pomocą klawiatury.

Trójwymiarowe okno w Visicon

Jeśli zajrzysz do pomieszczenia, sufit będzie widoczny nad nami. Oglądany z zewnątrz sufit nie będzie wyświetlany.

W ten sposób zbadaliśmy możliwości Visicon, dzięki którym szybko można stworzyć szkic wnętrza.

Zalety

- Interfejs rosyjskojęzyczny
- Obecność wcześniej utworzonych szablonów
- Jasne i wygodne środowisko pracy
- Wygodny proces przemieszczania kamery w trójwymiarowym oknie
- Obecność mini-okna podglądu elementu

Wady

- Bezpłatne jest tylko wersja demo z ograniczoną funkcjonalnością
- Brak możliwości edycji elementów w oknie obrazu 3D

Radzimy spojrzeć: Inne programy do projektowania wnętrz

Pobierz wersję próbną Visicon

Pobierz najnowszą wersję programu z oficjalnej strony